Kunngjøring av godkjent reguleringsplan, Detaljregulering for Arnvika boliger gnr/bnr 138/14

Tingvoll kommunestyre gjorde i møte 28.10.2025 følgende vedtak av detaljregulering for Arnvika boliger gnr/bnr 138/14, i samsvar med plan- og bygningsloven § 12-12. 

Vedtak

Tingvoll kommunestyre vedtar i samsvar med plan- og bygningsloven § 12-12 Detaljregulering for Arnvika boliger gnr/bnr 138/14 (planid 20220001) med plankart, planbeskrivelse og ROS-analyse revidert 25.09.2025 og planbestemmelser revidert 03.09.2025.

Tingvoll kommune fraskriver seg ethvert økonomisk ansvar i forbindelse med gjennomføring av planen.

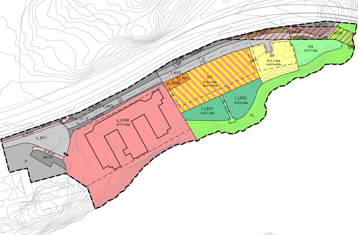
Plankart for Detaljregulering for Arnvika boliger gnr/bnr 138/14 - Klikk for stort bildePlankart for Detaljregulering for Arnvika boliger gnr/bnr 138/14

Erstatning og innløsning

Krav om erstatning etter plan- og bygningsloven § 15-3 og krav om innløsning etter § 15-2 må framsettes senest tre år etter at reguleringsplanen er kunngjort. 

Klageadgang 

Vedtaket kan påklages til Statsforvalteren. Klagefristen er 3 uker regnet fra den dagen da dette brevet kom fram til påført adressat. Det er tilstrekkelig at klagen er postlagt innen fristens utløp.

Klagen skal sendes skriftlig til Tingvoll kommune. Angi vedtaket det klages over, den eller de endringer som ønskes, og de grunner du vil anføre for klagen. Dersom du klager så sent at det kan være uklart for oss om du har klaget i rett tid, bes du også oppgi når denne melding kommer frem.

Klagen skal inneholde kommunens saksnummer, hva i vedtaket du klager over, hvilken endring du ønsker i vedtaket, og hvorfor det skal endres. Alle grunner som kan ha betydning for vurderingen bør nevnes. Klagen må ha underskrift.